藤田
この物件ページを、46人の人が閲覧してます。
徒歩圏内にコンビニ・郵便局有
- 物件ID165286
- お気に入り
空室情報
| 物件ID | 階/号室 | 坪数 | 保証金/敷金 | 償却 | 賃料 | 共益費 | 入居 |
|---|---|---|---|---|---|---|---|
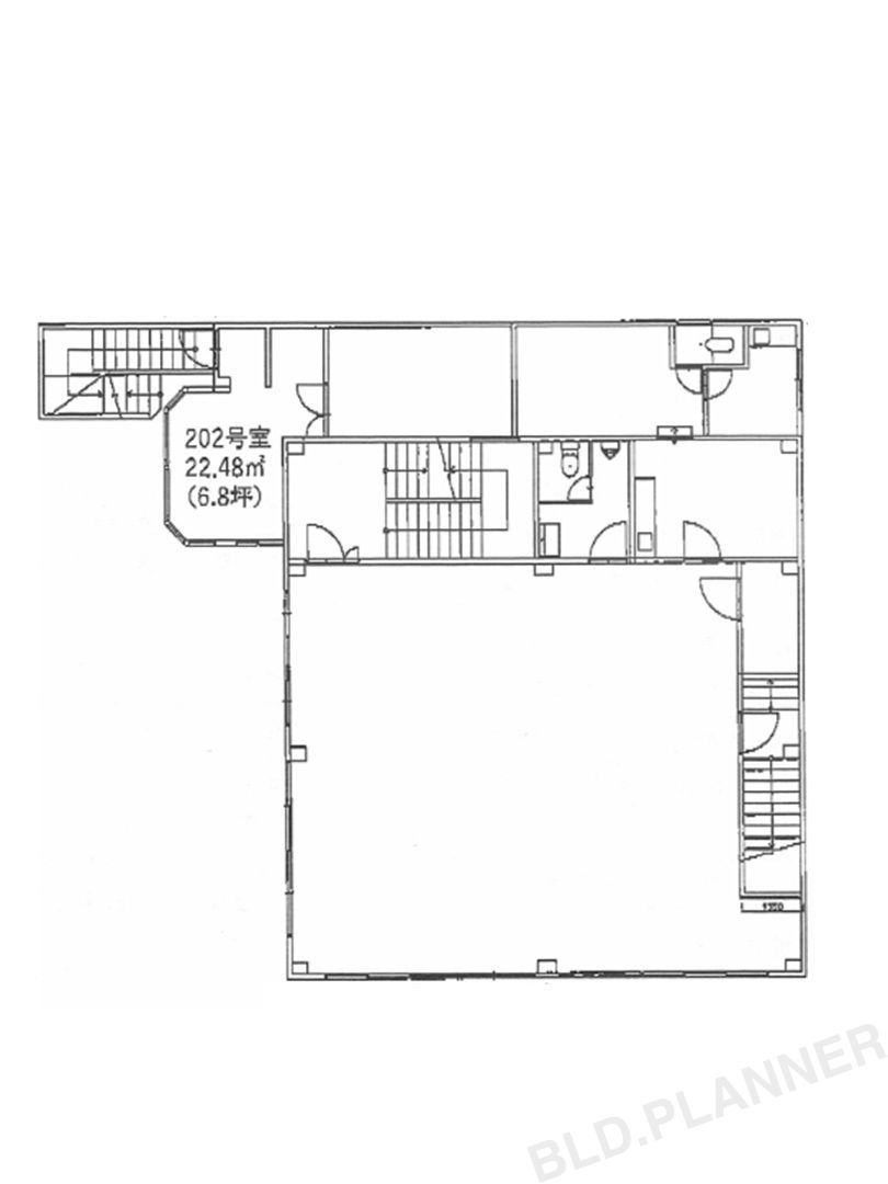
| 165286 | 2階/202 | 6.80坪 | 300,000円(6ヶ月 ) | 実費 | 55,000円(8,088円/坪) | 込 | 即入居 |
| 126558 | 3階/302 | 11.08坪 | 360,000円(6ヶ月 ) | 実費 | 66,000円(5,957円/坪) | 込 | 2026年08月~ |
| 物件ID | 165286 |
|---|---|
| 坪数 | 6.80坪 |
| 保証金/敷金 | 300,000円(6ヶ月 ) |
| 償却 | 実費 |
| 共益費 | 込 |
| 賃料 | 55,000円(8,088円/坪) |
| 入居 | 即入居 |
| 物件ID | 126558 |
|---|---|
| 坪数 | 11.08坪 |
| 保証金/敷金 | 360,000円(6ヶ月 ) |
| 償却 | 実費 |
| 共益費 | 込 |
| 賃料 | 66,000円(5,957円/坪) |
| 入居 | 2026年08月~ |
物件詳細
| 所在地 | 愛知県名古屋市南区平子2-24-12 | 最寄り駅 |
|
|---|---|---|---|
| 階/号室 | 2階/202 | 竣工 | 1975年 |
| 面積 | 6.80坪 | 保証金/敷金 | 300,000円(6ヶ月 ) |
| 賃料 | 55,000円(8,088円/坪) | 共益費 | 込 |
| 礼金 | なし | 償却 | 実費 |
| 入居 | 即入居 | 設備 |
| 所在地 | 愛知県名古屋市南区平子2-24-12 |
|---|---|
| 最寄り駅 |
|
| 階/号室 | 2階/202 |
| 竣工 | 1975年 |
| 面積 | 6.80坪 |
| 保証金/敷金 | 300,000円(6ヶ月 ) |
| 賃料 | 55,000円(8,088円/坪) |
| 共益費 | 込 |
| 礼金 | なし |
| 償却 | 実費 |
| 入居 | 即入居 |
| 設備 |
(2026年03月04日時点の情報です)
- 内観図、設備等は現状優先となります。
- 賃貸条件の詳細は重要事項説明書をもってご説明致します。
- 物件によっては別途費用がかかる場合がございます。
- ご紹介致しました物件にて契約が成立した場合、仲介手数料として賃料の1ヶ月分を申し受けます。
この物件についてお問い合わせ
メールでのお問い合わせ
このページは確認画面です。
内容をご確認のうえ、「送信する」ボタンを押してください。
- お問い合わせありがとうございました。
-
ご入力いただいたメールアドレスに、自動送信メールをお送りいたしましたのでご確認ください。
もし自動送信メールが届いていない場合は、何らかの不具合の可能性がございます。
大変お手数ですが、お電話にてご連絡ください。
株式会社ビルプランナー
【本社】
〒460-0002 名古屋市中区丸の内2丁目18番14号
TEL:052-218-4555 FAX:052-218-4556
- 似た条件の人気物件
-
-
- 南区豊
- 豊田本町駅 徒歩6分
13.02坪
99,000円
(7,605円/坪)
-
- TANIDA Kasadera Bldg
- 本星崎駅 徒歩5分
56.27坪
352,000円
(6,256円/坪)
-
- ウイング内田橋
- 豊田本町駅 徒歩3分
13.31坪
77,000円
(5,784円/坪)
-
- 第3菊屋
- 桜本町駅 徒歩2分
13.41坪
126,500円
(9,433円/坪)
-
















