中埜金山(旧服部エイト)
この物件ページを、14人の人が閲覧してます。
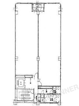
東向き レイアウトしやすい長方形
- 物件ID101476
- お気に入り
物件詳細
| 所在地 | 愛知県名古屋市中区伊勢山2-5-10 | 最寄り駅 |
|
|---|---|---|---|
| 階/号室 | 7階 | 竣工 | 1991年05月 |
| 面積 | 44.42坪 | 保証金/敷金 | 4,442,000円(10ヶ月 ) |
| 賃料 | 488,620円(11,000円/坪) | 共益費 | 込 |
| 礼金 | なし | 償却 | |
| 入居 | 2026年03月~ | 設備 | 個別空調 EV |
| 所在地 | 愛知県名古屋市中区伊勢山2-5-10 |
|---|---|
| 最寄り駅 |
|
| 階/号室 | 7階 |
| 竣工 | 1991年05月 |
| 面積 | 44.42坪 |
| 保証金/敷金 | 4,442,000円(10ヶ月 ) |
| 賃料 | 488,620円(11,000円/坪) |
| 共益費 | 込 |
| 礼金 | なし |
| 償却 | |
| 入居 | 2026年03月~ |
| 設備 | 個別空調 EV |
(2026年01月20日時点の情報です)
- 内観図、設備等は現状優先となります。
- 賃貸条件の詳細は重要事項説明書をもってご説明致します。
- 物件によっては別途費用がかかる場合がございます。
- ご紹介致しました物件にて契約が成立した場合、仲介手数料として賃料の1ヶ月分を申し受けます。
この物件についてお問い合わせ
メールでのお問い合わせ
このページは確認画面です。
内容をご確認のうえ、「送信する」ボタンを押してください。
- お問い合わせありがとうございました。
-
ご入力いただいたメールアドレスに、自動送信メールをお送りいたしましたのでご確認ください。
もし自動送信メールが届いていない場合は、何らかの不具合の可能性がございます。
大変お手数ですが、お電話にてご連絡ください。
株式会社ビルプランナー
【本社】
〒460-0002 名古屋市中区丸の内2丁目18番14号
TEL:052-218-4555 FAX:052-218-4556
- 似た条件の人気物件
-
-
- アーク栄白川パーク(旧)白川第2別館)
- 伏見駅 徒歩6分
30.77坪
406,164円
(13,200円/坪)
-
- ジェムストーン丸の内
- 丸の内駅 徒歩2分
23.05坪
380,325円
(16,500円/坪)
-
- 第七錦
- 伏見駅 徒歩6分
8.55坪
94,050円
(11,000円/坪)
-
- 錦中央
- 久屋大通駅 徒歩2分
239.64坪
4,365,185円
(18,216円/坪)
-
















