葉山
- 物件ID141291
- お気に入り
物件詳細
| 所在地 | 愛知県豊橋市駅前大通92 | 最寄り駅 | 
 | 
|---|---|---|---|
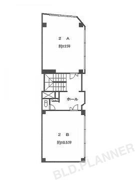
| 階/号室 | 2階/A | 竣工 | 1980年01月 | 
| 面積 | 12.07坪 | 保証金/敷金 | 330,000円(3ヶ月 ) | 
| 賃料 | 110,000円(9,116円/坪) | 共益費 | 込 | 
| 礼金 | 220,000円(2ヶ月 ) | 償却 | |
| 入居 | 即入居 | 設備 | 
| 所在地 | 愛知県豊橋市駅前大通92 | 
|---|---|
| 最寄り駅 | 
 | 
| 階/号室 | 2階/A | 
| 竣工 | 1980年01月 | 
| 面積 | 12.07坪 | 
| 保証金/敷金 | 330,000円(3ヶ月 ) | 
| 賃料 | 110,000円(9,116円/坪) | 
| 共益費 | 込 | 
| 礼金 | 220,000円(2ヶ月 ) | 
| 償却 | |
| 入居 | 即入居 | 
| 設備 | 
(2025年09月08日時点の情報です)
                            - 内観図、設備等は現状優先となります。
- 賃貸条件の詳細は重要事項説明書をもってご説明致します。
- 物件によっては別途費用がかかる場合がございます。
- ご紹介致しました物件にて契約が成立した場合、仲介手数料として賃料の1ヶ月分を申し受けます。
この物件についてお問い合わせ
メールでのお問い合わせ
このページは確認画面です。
内容をご確認のうえ、「送信する」ボタンを押してください。
- お問い合わせありがとうございました。
- 
                        ご入力いただいたメールアドレスに、自動送信メールをお送りいたしましたのでご確認ください。
 もし自動送信メールが届いていない場合は、何らかの不具合の可能性がございます。
 大変お手数ですが、お電話にてご連絡ください。
 
 
 株式会社ビルプランナー
 
 【本社】
 〒460-0002 名古屋市中区丸の内2丁目18番14号
 TEL:052-218-4555 FAX:052-218-4556
- 似た条件の人気物件
- 
                        - 
                                      - タワーレジデンスアネックス・2
- 新川駅 徒歩7分
 24.09坪
 191,180円
 (7,935円/坪)
 
- 
                                      - 豊橋ミラまち商業施設(EAST棟)
- 南栄駅 徒歩9分
 179.68坪
 相談
 
- 
                                      - あいおいニッセイ同和損保豊橋
- 札木駅 徒歩2分
 58.24坪
 128,128円
 (2,200円/坪)
 
- 
                                      - 豊橋イースト
- 新川駅 徒歩1分
 9.61坪
 36,987円
 (3,850円/坪)
 
 
- 
                                    
















