DEPOTはるひ
この物件ページを、2人の人が閲覧してます。
- 物件ID171043
- お気に入り
物件詳細
| 所在地 | 愛知県清須市春日焼田38 | 最寄り駅 |
|
|---|---|---|---|
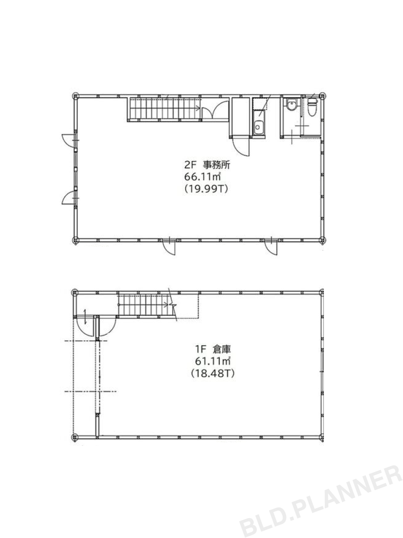
| 階/号室 | 1階~2階 | 竣工 | 2026年03月 |
| 面積 | 38.48坪 | 保証金/敷金 | 1,080,000円(4ヶ月 ) |
| 賃料 | 297,000円(7,717円/坪) | 共益費 | 込 |
| 礼金 | なし | 償却 | 25% |
| 入居 | 2026年03月~ | 設備 |
| 所在地 | 愛知県清須市春日焼田38 |
|---|---|
| 最寄り駅 |
|
| 階/号室 | 1階~2階 |
| 竣工 | 2026年03月 |
| 面積 | 38.48坪 |
| 保証金/敷金 | 1,080,000円(4ヶ月 ) |
| 賃料 | 297,000円(7,717円/坪) |
| 共益費 | 込 |
| 礼金 | なし |
| 償却 | 25% |
| 入居 | 2026年03月~ |
| 設備 |
(2026年03月13日時点の情報です)
- 内観図、設備等は現状優先となります。
- 賃貸条件の詳細は重要事項説明書をもってご説明致します。
- 物件によっては別途費用がかかる場合がございます。
- ご紹介致しました物件にて契約が成立した場合、仲介手数料として賃料の1ヶ月分を申し受けます。
この物件についてお問い合わせ
メールでのお問い合わせ
このページは確認画面です。
内容をご確認のうえ、「送信する」ボタンを押してください。
- お問い合わせありがとうございました。
-
ご入力いただいたメールアドレスに、自動送信メールをお送りいたしましたのでご確認ください。
もし自動送信メールが届いていない場合は、何らかの不具合の可能性がございます。
大変お手数ですが、お電話にてご連絡ください。
株式会社ビルプランナー
【本社】
〒460-0002 名古屋市中区丸の内2丁目18番14号
TEL:052-218-4555 FAX:052-218-4556
- 似た条件の人気物件
-
-
- 渡辺店舗
- 下小田井駅 徒歩1分
15.43坪
115,500円
(7,486円/坪)
-
- 宮前二丁目店舗事務所
- 枇杷島駅 徒歩8分
59.90坪
539,100円
(9,000円/坪)
-
- ホワイトハイツエムワン
- 枇杷島駅 徒歩5分
8.17坪
42,680円
(5,225円/坪)
-
- メゾン須ヶ口
- 須ヶ口駅 徒歩1分
-坪
70,400円
(-円/坪)
-
















