SC錦ANNEX

伏見オフィス街。閑静な周辺環境。綺麗な外観と高級感あるエントランス。無柱でレイアウトがしやすいオフィス。

  • 外観図
  • 内観図

物件詳細

所在地 愛知県名古屋市中区錦2-10-13 最寄り駅
  • 名古屋市東山線 伏見駅 徒歩3分
  • 名古屋市鶴舞線 伏見駅 徒歩3分
  • 名古屋市桜通線 丸の内駅 徒歩4分
  • 名古屋市鶴舞線 丸の内駅 徒歩5分
  • 名古屋市名城線 栄駅 徒歩10分
  • 名古屋市東山線 栄駅 徒歩10分
階/号室 6階/AB 竣工 2009年05月
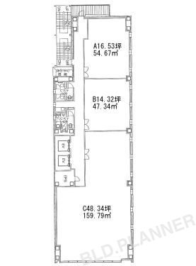
面積 30.13坪 保証金/敷金 相談
賃料 相談 共益費
礼金 なし 償却 0%
入居 2026年01月~ 設備 個別空調 EV OA セキュリティ
所在地 愛知県名古屋市中区錦2-10-13
最寄り駅
  • 名古屋市東山線 伏見駅 徒歩3分
  • 名古屋市鶴舞線 伏見駅 徒歩3分
  • 名古屋市桜通線 丸の内駅 徒歩4分
  • 名古屋市鶴舞線 丸の内駅 徒歩5分
  • 名古屋市名城線 栄駅 徒歩10分
  • 名古屋市東山線 栄駅 徒歩10分
階/号室 6階/AB
竣工 2009年05月
面積 30.13坪
保証金/敷金 相談
賃料 相談
共益費
礼金 なし
償却 0%
入居 2026年01月~
設備 個別空調 EV OA セキュリティ
(2025年10月17日時点の情報です)
  • 内観図、設備等は現状優先となります。
  • 賃貸条件の詳細は重要事項説明書をもってご説明致します。
  • 物件によっては別途費用がかかる場合がございます。
  • ご紹介致しました物件にて契約が成立した場合、仲介手数料として賃料の1ヶ月分を申し受けます。

この物件についてお問い合わせ

お電話でのお問い合わせ

052-218-4555平日 9:00~18:00

メールでのお問い合わせ
物件名 SC錦ANNEX
物件ID 074916
会社名
お名前必須
メールアドレス必須
電話番号必須
ご希望・
お問い合わせ
内容

「個人情報の取り扱いについて」に同意いただいた場合は、「同意する」にチェックのうえ「確認画面へ」ボタンをクリックしてください。

個人情報の取り扱いについて
株式会社ビルプランナー(以下当社)は個人情報保護に関する法令を遵守し、その取扱及び保護等について個人情報保護法の規定に基づき下記のとおりご説明いたします。

1.お客様の個人情報の利用目的

  1. 物件情報を取引の相手方探索のために利用します。
  2. 物件情報をインターネット、チラシ等広告をするために利用します。
  3. 物件情報を、取引の相手方探索のため指定流通機構の物件検索システム(レインズ)に登録する場合があります。なお契約後、指定流通機構(宅地建物取引業法により、国土交通大臣の指定を受けた機構。)に対し、成約情報(成約情報は、成約した物件の、物件概要、契約年月日、成約価格などの情報で、氏名は含みません。)を提供します。指定流通機構は、物件情報及び成約情報を指定流通機構の会員たる宅地建物取引業者や公的な団体に電子データや紙媒体で提供することなどの宅地建物取引業法に規定された指定流通機構の業務のために利用します。
  4. 不動産の売買契約又は賃貸契約の相手方を探索すること、及び売買、賃貸借、仲介、管理等の契約を締結し、契約に基づく役務を提供することに利用します。
  5. 管理が伴う場合には、マンション等の管理組合で締結した管理委託契約業務履行のため利用します。
  6. 上記、1.から 5.の業務に付随する、お客様にとって有用と思われる当社及び提携先のご案内や商品の発送、関連するアフターサービス、また、管理においてのメンテナンス等の業務に関するお知らせ等に利用します。
  7. 宅地建物取引業法第49条に基づく帳簿及びその資料として保管します。
  8. 不動産の売買、賃貸等に関する価格査定に利用します。価格査定に用いた成約情報は、宅地建物取引業法第34条の2第2項に規定する「意見の根拠」として仲介の依頼者に提供することがあります。
  9. 下記3記載の第三者に提供します。

2.当社が保有している個人情報と利用目的

  1. 当社は、当社との不動産取引に伴い賃貸物件の入居希望者様・入居者様、売買物件の申込者様・購入者様管理もしくは媒介の委託を受けた不動産の所有者その他権利者様から受領した申込書、契約書等に記載された個人情報、その他適正な手段で入手した個人情報を有しています。
  2. お客様との契約の履行、賃貸取引にあっては契約管理、売買取引にあっては契約後の管理・アフターサービス実施のため利用します。
  3. 当社は、当社の他の不動産物件におけるサービスの紹介並びにお客様にとって有用と思われる当社提携先の商品・サービス等を紹介するためのダイレクトメールの発送等のために、お宮様の個人情報のうち住所、氏名、電話番号、メールアドレスの情報を利用させていただきます。このための利用は、お客様からの申し出により取り止めます。

3.個人情報の第三者への提供

当社が保有する個人情報は、お客様との契約の履行、賃貸取引にあっては契約管理、売買取引にあっては契約後の管理・アフターサービスの実施のため、業務の内容に応じて、氏名、住所、電話番号、生年月日、不動産物件情報、成約情報を、書面、郵便物、電話、インターネット、電子メール、広告媒体等で次の 1.~ 11.記載の第三者に提供されます。なお、お客様からの申出がありましたら、提供は停止いたします。
  1. お客様から委託を受けた事項についての契約の相手方となる者、その見込者。
  2. 他の宅地建物取引業者。
  3. インターネット広告、その他広告の掲載事業者及び団体。
  4. 指定流通機構(専属専任媒介契約、専任媒介契約が提携された場合には、宅地建物取引業法に基づき、指定流通機構への登録及び成約情報の通知が宅地建物取引業者に義務付けられます。)
  5. 登記に関する司法書士、土地家屋調査士。
  6. 融資等に関する金融機関関係。
  7. 対象不動産について管理の必要がある場合における管理業者。
  8. 当社の管理が生じる場合は、管理委託契約の重要事項説明書に定める業務委託先及び管理費引き落としの際の振込先金融機関、管理組合役員。
  9. 入居希望者様の信用照合のための信用情報機関(必要な場合)。
  10. 入居者様が賃料を滞納した場合の滞納取立者。
  11. お客様にとって有用と思われる当社提携先。

4.個人情報の保護対策

  1. 当社の従業者に対して個人情報保護のための教育を定期的に行い、お客様の個人情報を厳重に管理いたします。
  2. 当社のデータベース等に対する必要な安全管理措置を実施いたします。

5.個人情報処理の外部委託

  1. 当社が保有する個人データの扱いの全部又は一部について外部委託をするときは、必要な契約を締結し、適切な管理・監督を行います。

6.個人情報の共同利用

  1. お客様の個人情報を共同利用する際には、個人情報保護法に定める別途必要な処置を講じます。

7.個人情報の開示請求及び訂正、利用の停止等の申出、及び取扱に関する苦情

  1. お客様より、個人情報取扱に関する各種お問合せ及びご相談の窓口は下記のとおりです。
各種お問合せ・相談窓口
お電話でのご相談  TEL : 052-218-4555
メールでのご相談  お問い合わせフォームへ
担当者:田中 里美

令和2年8月01日
【個人情報取扱事業者】 株式会社ビルプランナー
名古屋市中区丸の内2-18-14

※弊社への営業を目的としたメールの送信はご遠慮いただくようお願い申し上げます。

現在選択中の条件

条件を変更する

条件を追加

  • プレミアム送迎
  • 人気エリア案内
  • 会員登録はこちらから