ラディアント大須
この物件ページを、7人の人が閲覧してます。
- 物件ID009882
- お気に入り
物件詳細
| 所在地 | 愛知県名古屋市中区大須2-23-36 | 最寄り駅 |
|
|---|---|---|---|
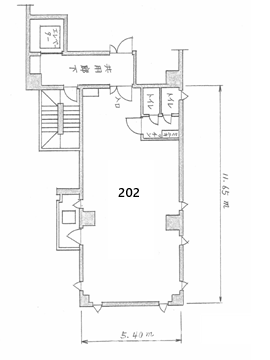
| 階/号室 | 2階/202 | 竣工 | 1990年07月 |
| 面積 | 19.03坪 | 保証金/敷金 | 300,000円(3ヶ月 ) |
| 賃料 | 110,000円(5,780円/坪) | 共益費 | 込 |
| 礼金 | なし | 償却 | 0% |
| 入居 | 2026年05月~ | 設備 | 個別空調 EV セキュリティ |
| 所在地 | 愛知県名古屋市中区大須2-23-36 |
|---|---|
| 最寄り駅 |
|
| 階/号室 | 2階/202 |
| 竣工 | 1990年07月 |
| 面積 | 19.03坪 |
| 保証金/敷金 | 300,000円(3ヶ月 ) |
| 賃料 | 110,000円(5,780円/坪) |
| 共益費 | 込 |
| 礼金 | なし |
| 償却 | 0% |
| 入居 | 2026年05月~ |
| 設備 | 個別空調 EV セキュリティ |
(2026年04月27日時点の情報です)
- 内観図、設備等は現状優先となります。
- 賃貸条件の詳細は重要事項説明書をもってご説明致します。
- 物件によっては別途費用がかかる場合がございます。
- ご紹介致しました物件にて契約が成立した場合、仲介手数料として賃料の1ヶ月分を申し受けます。
この物件についてお問い合わせ
メールでのお問い合わせ
このページは確認画面です。
内容をご確認のうえ、「送信する」ボタンを押してください。
- お問い合わせありがとうございました。
-
ご入力いただいたメールアドレスに、自動送信メールをお送りいたしましたのでご確認ください。
もし自動送信メールが届いていない場合は、何らかの不具合の可能性がございます。
大変お手数ですが、お電話にてご連絡ください。
株式会社ビルプランナー
【本社】
〒460-0002 名古屋市中区丸の内2丁目18番14号
TEL:052-218-4555 FAX:052-218-4556
- 似た条件の人気物件
-
-
- リブラ丸の内6(桜井オレンジ)
- 丸の内駅 徒歩4分
13.92坪
71,500円
(5,137円/坪)
-
- 富士見町八木
- 東別院駅 徒歩3分
17.50坪
121,275円
(6,930円/坪)
-
- カピス丸の内
- 丸の内駅 徒歩4分
21.50坪
236,500円
(11,000円/坪)
-
- ステイ・リアル大須
- 上前津駅 徒歩4分
55.49坪
1,109,680円
(19,998円/坪)
-

















