板倉屋
この物件ページを、71人の人が閲覧してます。
- 物件ID171028
- お気に入り
物件詳細
| 所在地 | 愛知県名古屋市東区東桜2-13-9 | 最寄り駅 |
|
|---|---|---|---|
| 階/号室 | 1階/101 | 竣工 | 1976年03月 |
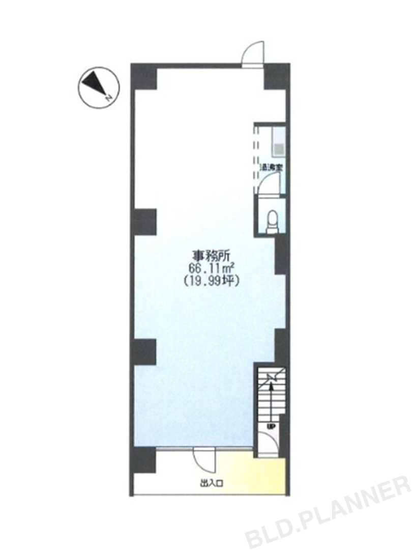
| 面積 | 20.00坪 | 保証金/敷金 | 1,000,000円(約3ヶ月 ) |
| 賃料 | 330,000円(16,502円/坪) | 共益費 | 込 |
| 礼金 | なし | 償却 | 0% |
| 入居 | 即入居 | 設備 | 個別空調 |
| 所在地 | 愛知県名古屋市東区東桜2-13-9 |
|---|---|
| 最寄り駅 |
|
| 階/号室 | 1階/101 |
| 竣工 | 1976年03月 |
| 面積 | 20.00坪 |
| 保証金/敷金 | 1,000,000円(約3ヶ月 ) |
| 賃料 | 330,000円(16,502円/坪) |
| 共益費 | 込 |
| 礼金 | なし |
| 償却 | 0% |
| 入居 | 即入居 |
| 設備 | 個別空調 |
(2026年04月20日時点の情報です)
- 内観図、設備等は現状優先となります。
- 賃貸条件の詳細は重要事項説明書をもってご説明致します。
- 物件によっては別途費用がかかる場合がございます。
- ご紹介致しました物件にて契約が成立した場合、仲介手数料として賃料の1ヶ月分を申し受けます。
この物件についてお問い合わせ
メールでのお問い合わせ
このページは確認画面です。
内容をご確認のうえ、「送信する」ボタンを押してください。
- お問い合わせありがとうございました。
-
ご入力いただいたメールアドレスに、自動送信メールをお送りいたしましたのでご確認ください。
もし自動送信メールが届いていない場合は、何らかの不具合の可能性がございます。
大変お手数ですが、お電話にてご連絡ください。
株式会社ビルプランナー
【本社】
〒460-0002 名古屋市中区丸の内2丁目18番14号
TEL:052-218-4555 FAX:052-218-4556
- 似た条件の人気物件
-
-
- IKKOパーク栄
- 久屋大通駅 徒歩4分
23.09坪
380,985円
(16,500円/坪)
-
- 吉泉
- 久屋大通駅 徒歩5分
19.31坪
254,892円
(13,200円/坪)
-
- 名古屋大曽根第一生命
- 大曽根駅 徒歩1分
29.71坪
相談
-
- 第二戸嶋屋
- 高岳駅 徒歩8分
7.63坪
49,500円
(6,491円/坪)
-
















