オフィスオオモリ
この物件ページを、48人の人が閲覧してます。
伏見エリア。大通り沿いの好立地。採光取れ、レイアウトしやすい間取り。
- 物件ID170525
- お気に入り
空室情報
| 物件ID | 階/号室 | 坪数 | 保証金/敷金 | 償却 | 賃料 | 共益費 | 入居 |
|---|---|---|---|---|---|---|---|
| 031432 | 6階/602 | 13.50坪 | 594,000円(4ヶ月 ) | 2ヶ月 | 163,350円(12,100円/坪) | 込 | 即入居 |
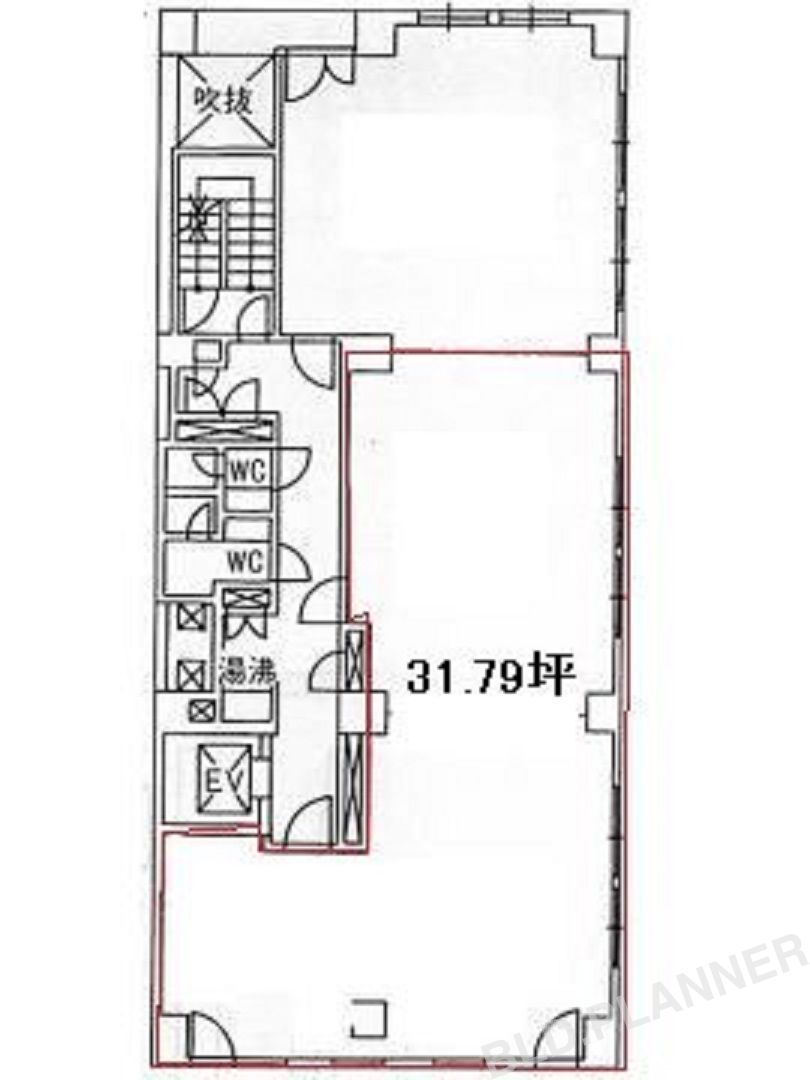
| 170525 | 10階/1+2 | 31.79坪 | 1,398,760円(4ヶ月 ) | 2ヶ月 | 384,659円(12,100円/坪) | 込 | 即入居 |
| 物件ID | 031432 |
|---|---|
| 坪数 | 13.50坪 |
| 保証金/敷金 | 594,000円(4ヶ月 ) |
| 償却 | 2ヶ月 |
| 共益費 | 込 |
| 賃料 | 163,350円(12,100円/坪) |
| 入居 | 即入居 |
| 物件ID | 170525 |
|---|---|
| 坪数 | 31.79坪 |
| 保証金/敷金 | 1,398,760円(4ヶ月 ) |
| 償却 | 2ヶ月 |
| 共益費 | 込 |
| 賃料 | 384,659円(12,100円/坪) |
| 入居 | 即入居 |
物件詳細
| 所在地 | 愛知県名古屋市中区錦2-8-24 | 最寄り駅 |
|
|---|---|---|---|
| 階/号室 | 10階/1+2 | 竣工 | 1989年01月 |
| 面積 | 31.79坪 | 保証金/敷金 | 1,398,760円(4ヶ月 ) |
| 賃料 | 384,659円(12,100円/坪) | 共益費 | 込 |
| 礼金 | なし | 償却 | 2ヶ月 |
| 入居 | 即入居 | 設備 | 個別空調 EV セキュリティ |
| 所在地 | 愛知県名古屋市中区錦2-8-24 |
|---|---|
| 最寄り駅 |
|
| 階/号室 | 10階/1+2 |
| 竣工 | 1989年01月 |
| 面積 | 31.79坪 |
| 保証金/敷金 | 1,398,760円(4ヶ月 ) |
| 賃料 | 384,659円(12,100円/坪) |
| 共益費 | 込 |
| 礼金 | なし |
| 償却 | 2ヶ月 |
| 入居 | 即入居 |
| 設備 | 個別空調 EV セキュリティ |
(2026年04月06日時点の情報です)
- 内観図、設備等は現状優先となります。
- 賃貸条件の詳細は重要事項説明書をもってご説明致します。
- 物件によっては別途費用がかかる場合がございます。
- ご紹介致しました物件にて契約が成立した場合、仲介手数料として賃料の1ヶ月分を申し受けます。
この物件についてお問い合わせ
メールでのお問い合わせ
このページは確認画面です。
内容をご確認のうえ、「送信する」ボタンを押してください。
- お問い合わせありがとうございました。
-
ご入力いただいたメールアドレスに、自動送信メールをお送りいたしましたのでご確認ください。
もし自動送信メールが届いていない場合は、何らかの不具合の可能性がございます。
大変お手数ですが、お電話にてご連絡ください。
株式会社ビルプランナー
【本社】
〒460-0002 名古屋市中区丸の内2丁目18番14号
TEL:052-218-4555 FAX:052-218-4556























