仮)名駅2丁目
この物件ページを、97人の人が閲覧してます。
- 物件ID171122
- お気に入り
空室情報
| 物件ID | 階/号室 | 坪数 | 保証金/敷金 | 償却 | 賃料 | 共益費 | 入居 |
|---|---|---|---|---|---|---|---|
| 170961 | 1階/A | 31.60坪 | 11,060,000円(11ヶ月 ) | 1,112,320円(35,200円/坪) | 104,280円(3,300円/坪) | 相談 | |
| 171122 | 2階/C | 7.80坪 | 2,340,000円(11ヶ月 ) | 231,660円(29,700円/坪) | 25,740円(3,300円/坪) | 相談 |
| 物件ID | 170961 |
|---|---|
| 坪数 | 31.60坪 |
| 保証金/敷金 | 11,060,000円(11ヶ月 ) |
| 償却 | |
| 共益費 | 104,280円(3,300円/坪) |
| 賃料 | 1,112,320円(35,200円/坪) |
| 入居 | 相談 |
| 物件ID | 171122 |
|---|---|
| 坪数 | 7.80坪 |
| 保証金/敷金 | 2,340,000円(11ヶ月 ) |
| 償却 | |
| 共益費 | 25,740円(3,300円/坪) |
| 賃料 | 231,660円(29,700円/坪) |
| 入居 | 相談 |
物件詳細
| 所在地 | 愛知県名古屋市中村区名駅2-4006-1、4007-2 | 最寄り駅 |
|
|---|---|---|---|
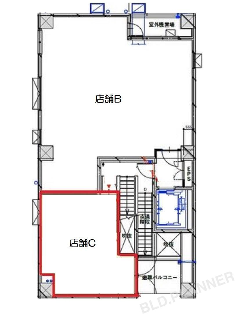
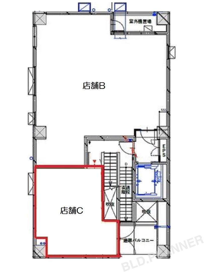
| 階/号室 | 2階/C | 竣工 | 2026年10月 |
| 面積 | 7.80坪 | 保証金/敷金 | 2,340,000円(11ヶ月 ) |
| 賃料 | 231,660円(29,700円/坪) | 共益費 | 25,740円(3,300円/坪) |
| 礼金 | なし | 償却 | |
| 入居 | 相談 | 設備 | 個別空調 EV |
| 所在地 | 愛知県名古屋市中村区名駅2-4006-1、4007-2 |
|---|---|
| 最寄り駅 |
|
| 階/号室 | 2階/C |
| 竣工 | 2026年10月 |
| 面積 | 7.80坪 |
| 保証金/敷金 | 2,340,000円(11ヶ月 ) |
| 賃料 | 231,660円(29,700円/坪) |
| 共益費 | 25,740円(3,300円/坪) |
| 礼金 | なし |
| 償却 | |
| 入居 | 相談 |
| 設備 | 個別空調 EV |
(2026年04月28日時点の情報です)
- 内観図、設備等は現状優先となります。
- 賃貸条件の詳細は重要事項説明書をもってご説明致します。
- 物件によっては別途費用がかかる場合がございます。
- ご紹介致しました物件にて契約が成立した場合、仲介手数料として賃料の1ヶ月分を申し受けます。
この物件についてお問い合わせ
メールでのお問い合わせ
このページは確認画面です。
内容をご確認のうえ、「送信する」ボタンを押してください。
- お問い合わせありがとうございました。
-
ご入力いただいたメールアドレスに、自動送信メールをお送りいたしましたのでご確認ください。
もし自動送信メールが届いていない場合は、何らかの不具合の可能性がございます。
大変お手数ですが、お電話にてご連絡ください。
株式会社ビルプランナー
【本社】
〒460-0002 名古屋市中区丸の内2丁目18番14号
TEL:052-218-4555 FAX:052-218-4556
- 似た条件の人気物件
-
-
- ベース名駅南
- ささしまライブ駅 徒歩9分
12.20坪
160,000円
(13,118円/坪)
-
- MARUWA名駅
- 名鉄名古屋駅 徒歩6分
22.96坪
404,096円
(17,600円/坪)
-
- ナカモ
- 国際センター駅 徒歩4分
24.55坪
364,567円
(14,850円/坪)
-
- S-BUILDING名古屋駅前
- 名古屋駅 徒歩6分
72.26坪
相談
-
















